Här presenteras pågående projekt.
Många projekt på G, 2024 (projekten uppdateras löpande)
- Nybyggnad av Handelshus, Ludvika
- Tillbyggnad av hotell, Ludvika
- Ombyggnad av industrilokal till bostäder, Ludvika
- Nybyggnad av Hästgård, Fagersta
- Nybyggnad av Brf. Flerbostadshus, Söderbärke
- Ombyggnad av Fritidshus, Avesta
- Nybyggnad av Flerbostadshus, Ludvika
- Nybyggnad av fritidshus, Kolsva
- Tillbyggnad av eventlokal, Söderbärke
- Nybyggnad Villa, Värmdö
- Tillbyggnad av Butikslokal, Ludvika
- Ny- samt ombyggnad av Fritidshus, Borlänge
- Utbyggnad av Fritidshus, Fagersta
- Utbyggnad av Livsmedelsbutik, Söderbärke
- Tillbyggnad av tillgänglig entré, Smedjebacken
- Nybyggnad av Träningscenter, Skinnskatteberg
- Nybyggnad av Fritidshus, Sörbo
- Nybyggnad av Garage/Carport, Söderbärke
- Ombyggnad av Hyreshus, Ludvika
- Om- och tillbyggnad av Villa, Söderbärke
Med mera…
© Olhans Arkitektur AB





Projekt: Industrihall, Fagersta
Beställare: Byggherre/Entreprenör
Uppdrag: Arkitekt SAR, A-projektering
Bruttoarea: 1429 m2, varav 327 m2 på entrésol.
Beskrivning: Nybyggnation av industrihall. Stomme i stål och fasad av Paroc-element. I nära dialog med byggherre och hyresgäst har utformningen anpassats till verksamheten. Kontor i två plan och en stor luftig produktionshall.



Projekt: P-Hus, butiker, Västerås Kommun
Beställare: Entreprenör
Uppdrag: Sakkunnig av Tillgänglighet enl. TIL2
Beskrivning: Granskning och besiktning av nybyggt p-hus samt Coop och Apoteksbutiker.


Projekt: Nybyggnad Villa, Värmdö Kommun
Beställare: Byggherre
Uppdrag: Arkitekt SAR, A-projektering
Beskrivning: Nybyggnation av villa i modern stil. Beställarens önskemål var förskjutna volymer, mycket glas och högt i tak. Huset kommer att byggas på en förhållandevis stenig tomt som sluttar kraftigt mot vatten i söderläge. Fler bilder kommer…


Projekt: Om- & tillbyggnad Villa, Smedjebackens Kommun
Beställare: Byggherre
Uppdrag: Arkitekt SAR, A-projektering
Beskrivning: Ombyggnad av en villa byggd på 80-talet. Beställarens önskemål var att förändra husets karaktär till ett mer sekelskiftetsbetonat. Huset byggs om i sin helhet både interiört och exteriört. Fler bilder kommer…




Projekt: Nybyggnad Villa, Smedjebackens Kommun
Beställare: Byggherre
Uppdrag: Arkitekt SAR, A-projektering
Beskrivning: Nybyggnation av bostadshus i modern stil. Huset skall uppföras i betong/sten och har ett tillhörande garage som införlivats i bostadsvolymen. Enkla idéskisser från beställaren med önskemål förädlades under processen till en sammanhållen lätt vinklad volym. Huset skall byggas på en förhållandevis kraftigt sluttande tomt med sjöutsikt.


Projekt: Ombyggnad Villa, Smedjebackens Kommun
Beställare: Byggherre
Uppdrag: Arkitekt SAR, A-projektering
Beskrivning: Om- och tillbyggnad av äldre bryggeri. Byggnaden är i stort behov av underhåll, därför beslutades att göra en större ombyggnad och förvandling av byggnaden från bryggeri till fritidshus. Fler bilder kommer…

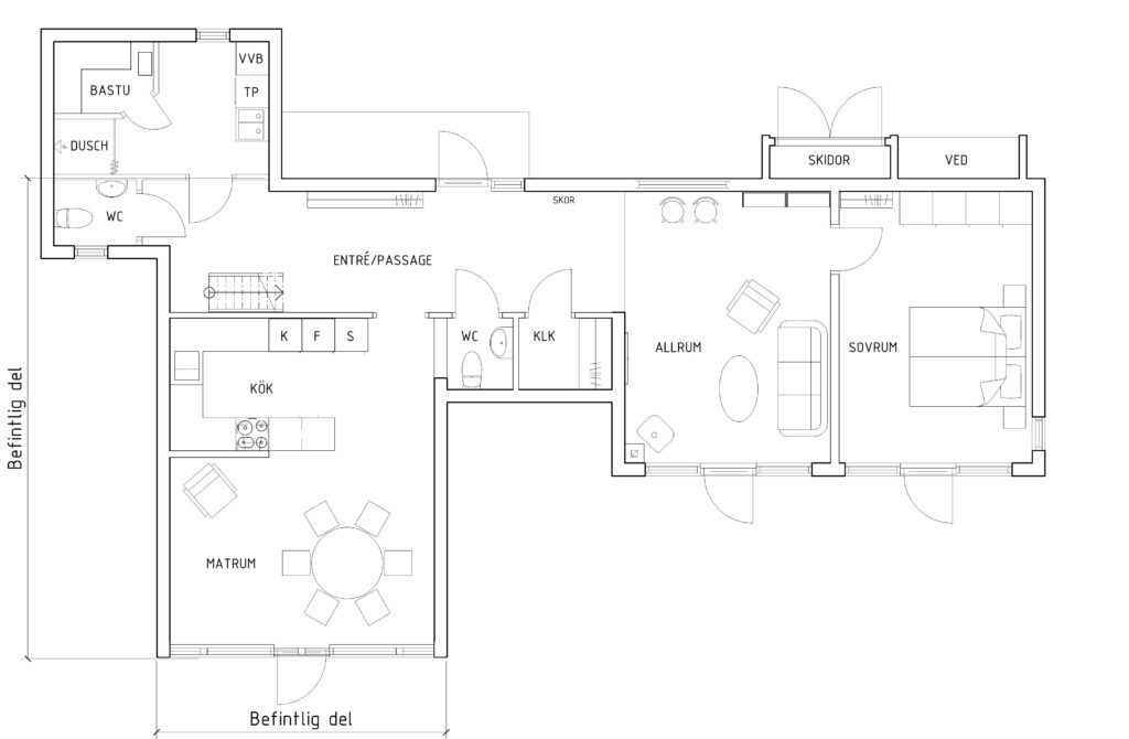
Projekt: Om- & Tillbyggnad fjällstuga i Bruksvallarna, Härjedalens Kommun
Beställare: Byggherre
Uppdrag: Arkitekt SAR, A-projektering
Beskrivning: Om- och tillbyggnad av mindre fjällstuga. Den triangulära formen fick inte förvanskas. En rektangulär volym infogades med generösa glaspartier enligt kundens önskemål. Nya ytskikt även i den befintliga delen. Ny bastu och wc i anslutning mot entré.











Projekt: Nybyggnad Fritidshus BYA 50m2, Smedjebackens Kommun
Beställare: Entreprenör
Uppdrag: Arkitekt SAR, A-projektering
Beskrivning: Nybyggnad av mindre fritidshus i två plan, 4 r&k + två badrum. Liten yta med många funktioner. Mycket glas för utblick mot vatten. Stort rum för Yoga på övre plan.


Projekt: Om- & Tillbyggnad Villa, Borås Kommun
Beställare: Byggherre
Uppdrag: Arkitekt SAR, A-projektering
Beskrivning: Om- och tillbyggnad av mindre villa. Endast centrumdelen av villan behålls (den vänstra delen innan ombyggnad). Huset byggs ut i båda längdriktningarna, till höger i två plan.
